P13
大埔太平工業中心
第四座1404室
(全新裝修合寫字樓)
|
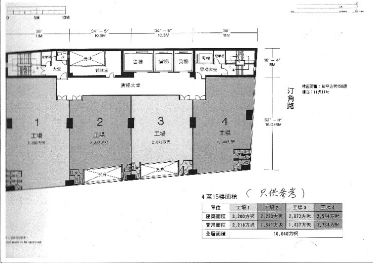
P23
大埔太平工業中心
第一座6樓D1室
(合貨倉及生產線)
每呎11.50元 面積約 4800呎 |
P24
大埔太平工業中心
第一座低層
(合貨倉及生產線)
每呎13元 面積約 10790呎 |
|
P203
寫字樓出租
深圳 羅湖區 建設路
東方廣場 1112室
租金﹕人民幣8,000元
面積約151.23平方米
3台窗口空調機
3台分体空調機
新換膠地板
有4間房
物業詳細資料
|
P204
寫字樓出租
深圳 羅湖區 人民南路
新安大廈 14樓A室
租 金 ﹕人民幣7,500元
可聯系何生﹕198 9656 4418
|
||
如有查詢, 請聯絡:

